岐阜西店ショールーム
稲沢市 リフォーム 間取り変更
こんにちは
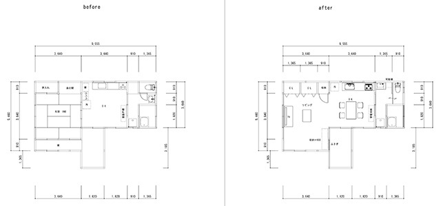
本日はLDK・水廻り間取り変更工事に関してご紹介致します
毎日使用するお部屋は「より快適に」をテーマにリフォーム工事を承りました
水廻り周辺を大きく変更し、住みやすさを考慮したプランになります。

LIXILショールームで商品仕様を決められていた為、
打合せ時はスムーズにお話しが進みました
照明機器・コンセント・スイッチ類の個数や配置も要検討してから施工に挑みました
合わせて収納力UPや同線の確保も考慮したプランでご提案させて頂きました
リフォームのご依頼を頂き誠にありがとうございました。
また、機会があれば宜しくお願い致します。






